2. Planung - WohnmobilausbauAm Anfang war die Mittellinie
Die ersten Planungsschritte:
1) Nachdem wir alle Inneneinbauten, die hauptsächlich aus Aluminium-Regalen bestanden, ausgebaut hatten wurde der Innenraum nochmals gründlich gereinigt.
2) Exakte Vermessung des Innenraums LxBxH. Einzeichnen der baulich wichtigen Punkte, die bereits vorgegeben waren, wie Radkästen, Schiebetür, Oberlicht, Hecktüre, Tür zum Führerhaus.
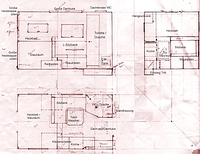
3) Einzeichnen der aufgenommenen Maße in eine maßstabsgetreue Konstruktionszeichnung. Die Möbelfertigung fand weitestgehend im Keller statt, da es draußen zu dieser Jahreszeit ca. -10°C kalt war. Deshalb mußten die Konstruktionszeichnungen exakt sein, denn ein direktes Anpassen im Fahrzeug war zu diesem Zeitpunkt nicht möglich.
4) Festlegen der Raumaufteilung. Gar nicht so einfach, wenn man so etwas zum ersten mal macht.
5) Nach der Festlegung der Raumaufteilung mussten alle Einbauteile festgelegt werden, um feststellen zu können, ob die Teile auch wirklich reinpassen. Hierbei halfen natürlich die einschlägigen Kataloge der Wohnmobilausstatter wie Reimo, Fritz Berger usw. sowie diverse Händler im Internet, die ihre Ware über Onlineshops oder Ebay anboten.

Hier wollen wir nochmals darauf eingehen, warum wir diese Raumaufteilung gewählt haben.
Das größte Einbauteil ist sicherlich das Heckbett. Hier war es uns wichtig, ein fest installiertes Bett zu haben, so dass wir nicht jeden Abend gezwungen sind, Betten zu bauen - das ist nämlich total nervig. Uns war sehr wohl bewußt, dass dadurch die Sitzgruppe nur für 2 Personen geeignet ist. Aber das ganze Wohnmobil nur für 2 Personen geeignet, war das ok. Ausserdem wollen wir uns ja im Freien aufhalten und nur im Notfall im Wohnmobil. Ein Muß ist die festeingebaute Toilette und die Notdusche mit Waschbecken - was auch ein Wunsch meiner Frau war. Als Küche reicht uns ein zweiflammiger Gaskocher und eine Spüle sowie eine Kompresssor-Kühlbox. Der Einbau des Gaskochers wurde direkt an / im Schiebetürenbereich gewählt, so dass man beim Kochen fast im Freien steht, gut für die Entlüftung und für die Kommunikation mit dem Koch / der Köchin. Die Heckgarage hat unter dem Bett das Fassungsvermögen von ca. 2.500 Litern. Genug für Gepäck, Urlaubsmitbringsel, Hobby und 2 Fahrräder, nichts finden wir nerviger als jedesmal beim Weiterfahren nach Stauplan die Heckgarage einräumen zu müssen. |